Rénovation

45 m2

60 000€

3 mois et 15 jours de travaux

Paris

Darwin

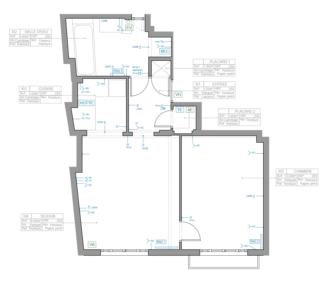
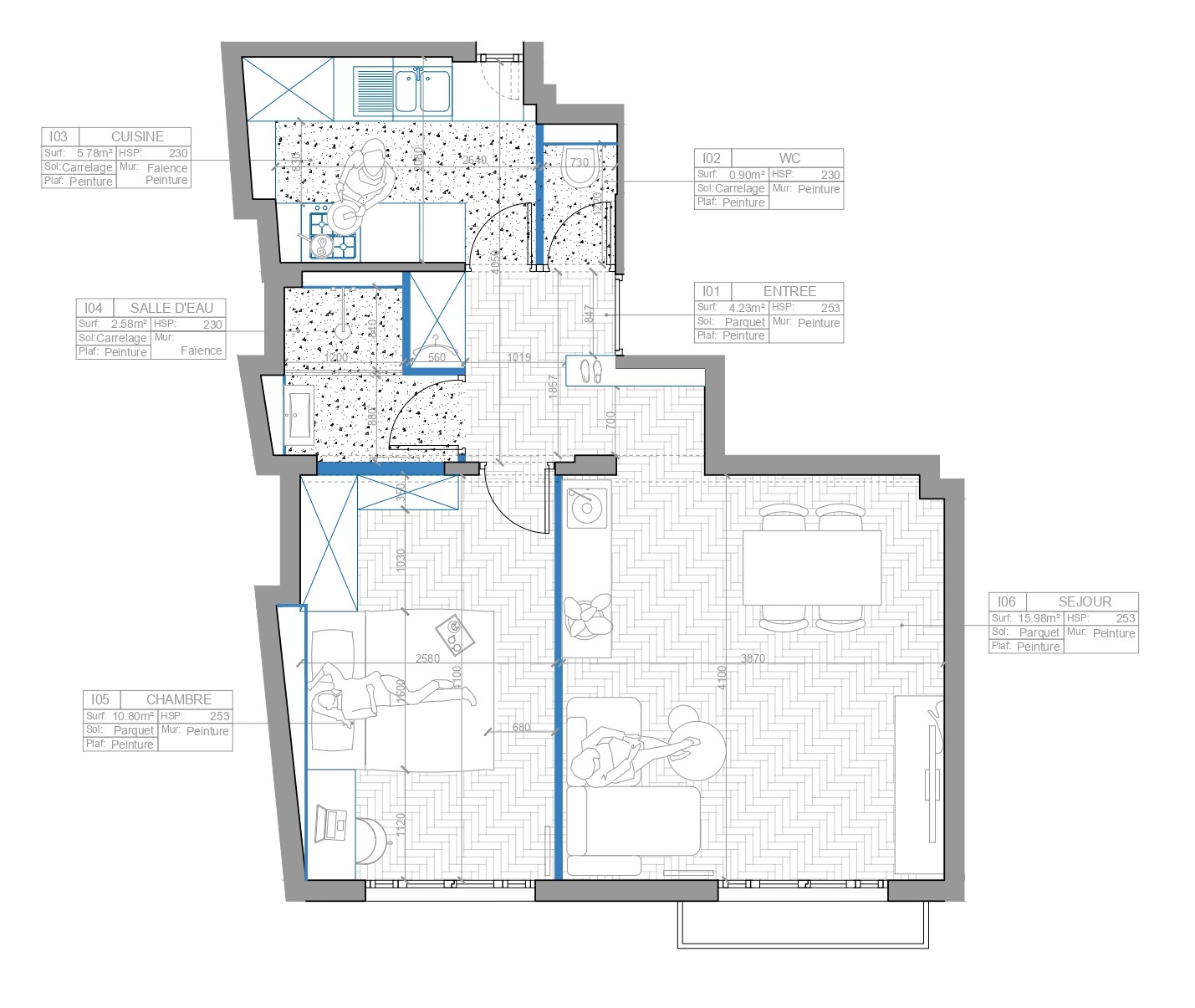
Rénovation intérieure d’un appartement T2 avec inversion salle d’eau/cuisine et chambre/séjour et requalification des surfaces de chaque pièce nécessitant une démolition lourde pour s’affranchir des limites de l’existant et s’adapter aux besoins usagers. Coordination avec bureau d'étude structure.

Ambiance épurée/minimaliste qui valorise des matériaux bruts mais chaleureux. Avec une harmonie de style entre les différents espaces.

Un projet avec des pièces qualifiées, redonnant de l’importance au séjour et à la cuisine.
Une entrée ouverte sur les espaces de vie, avec un wc autonome. Une chambre disposant d’un bureau, dressing et une salle d’eau compacte.

Accessibilité
1 minute pour découvrir votre Archi, 72h pour programmer votre rendez-vous. Pour 50€ : une visite à domicile, un compte rendu ainsi qu'un devis de l'archi.
Sélection
Une communauté triée sur le volet d'architectes, architectes d'intèrieur et décorateurs partout en France. Une sélection des Archis par un jury en 5 étapes de sélection sur dossier et recommandations.
Suivi
Suivez l'évolution de votre projet avec un conseiller personnel attribué à chaque client.
Garantie
Accédez aux meilleurs Archis, artisans & économisez de l'argent.
97% de nos clients satisfaits recommandent nos services. Des paiements via un compte séquestre pour garantir votre satisfaction. Une garantie bonne fin de chantier et une protection juridique offerte par RencontreunArchi en partenariat avec Axa Assurance pour garantir vos chantiers.
Prise de rdv express !
Confiez à Rencontreunarchi le choix de votre Archi

Attention si votre ville contient des tirets, ne les oubliez pas !
(Ex: Nogent-sur-marne).
Merci de cliquer sur votre ville dans le menu déroulant.

Votre rendez-vous par : Domicile Visio Coaching déco
Rendez-vous conseil déco avec votre archi à domicile !
1 pièce à décorer : 1h30 de coaching, 1 recherche mobilier, 1 croquis ou 3D de votre future pièce pour 320€.

Attention si votre ville contient des tirets, ne les oubliez pas !
(Ex: Nogent-sur-marne).
Merci de cliquer sur votre ville dans le menu déroulant.

Ce compte existe déjà. Veuillez-vous connecter pour prendre rendez-vous. Se connecter