Réhabilitation

70 m2

250 000€

9 mois et 3 jours de travaux

Paris

Truffaut

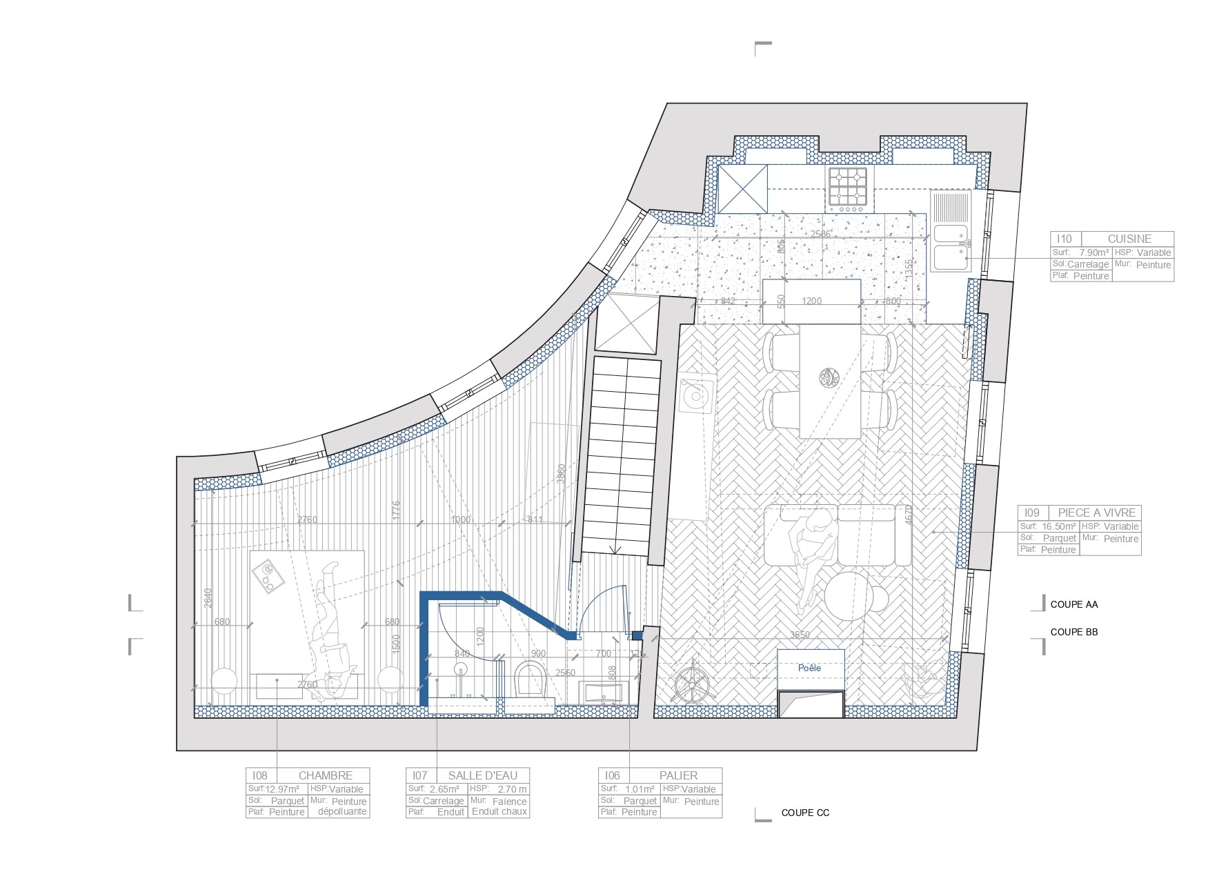
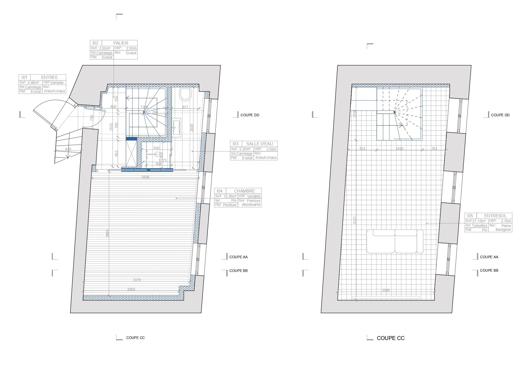
Réaménagement d’un triplex à Paris avec Déclaration Préalable de travaux concernant des
changements et agrandissement de menuiseries en façades et toitures, rénovation thermique RGE dans le cadre d'un parcours accompagné et aménagements intérieur avec mobiliers sur mesure.
Coordination de plusieurs études techniques et entreprises de réalisation des travaux.
Une reconfiguration complète des aménagements intérieurs avec changement de positionnement de l’escalier vers l’entresol, création de deux salles d’eau, reconfiguration d’une salle d’eau en cuisine ouverte. Changement de tous les équipements électriques et de plomberie avec rénovations des finitions intérieures nobles et remplacements raisonnés. Avec conception lumière pour valoriser des espaces atypiques comme une cave à vin et des grands volumes sous charpente à l'étage.

Accessibilité
1 minute pour découvrir votre Archi, 72h pour programmer votre rendez-vous. Pour 50€ : une visite à domicile, un compte rendu ainsi qu'un devis de l'archi.
Sélection
Une communauté triée sur le volet d'architectes, architectes d'intèrieur et décorateurs partout en France. Une sélection des Archis par un jury en 5 étapes de sélection sur dossier et recommandations.
Suivi
Suivez l'évolution de votre projet avec un conseiller personnel attribué à chaque client.
Garantie
Accédez aux meilleurs Archis, artisans & économisez de l'argent.
97% de nos clients satisfaits recommandent nos services. Des paiements via un compte séquestre pour garantir votre satisfaction. Une garantie bonne fin de chantier et une protection juridique offerte par RencontreunArchi en partenariat avec Axa Assurance pour garantir vos chantiers.
Prise de rdv express !
Confiez à Rencontreunarchi le choix de votre Archi

Attention si votre ville contient des tirets, ne les oubliez pas !
(Ex: Nogent-sur-marne).
Merci de cliquer sur votre ville dans le menu déroulant.

Votre rendez-vous par : Domicile Visio Coaching déco
Rendez-vous conseil déco avec votre archi à domicile !
1 pièce à décorer : 1h30 de coaching, 1 recherche mobilier, 1 croquis ou 3D de votre future pièce pour 320€.

Attention si votre ville contient des tirets, ne les oubliez pas !
(Ex: Nogent-sur-marne).
Merci de cliquer sur votre ville dans le menu déroulant.

Ce compte existe déjà. Veuillez-vous connecter pour prendre rendez-vous. Se connecter