Rénovation

100 m2

80 000€

2 mois et 8 jours de travaux

Vincennes

Vincennes

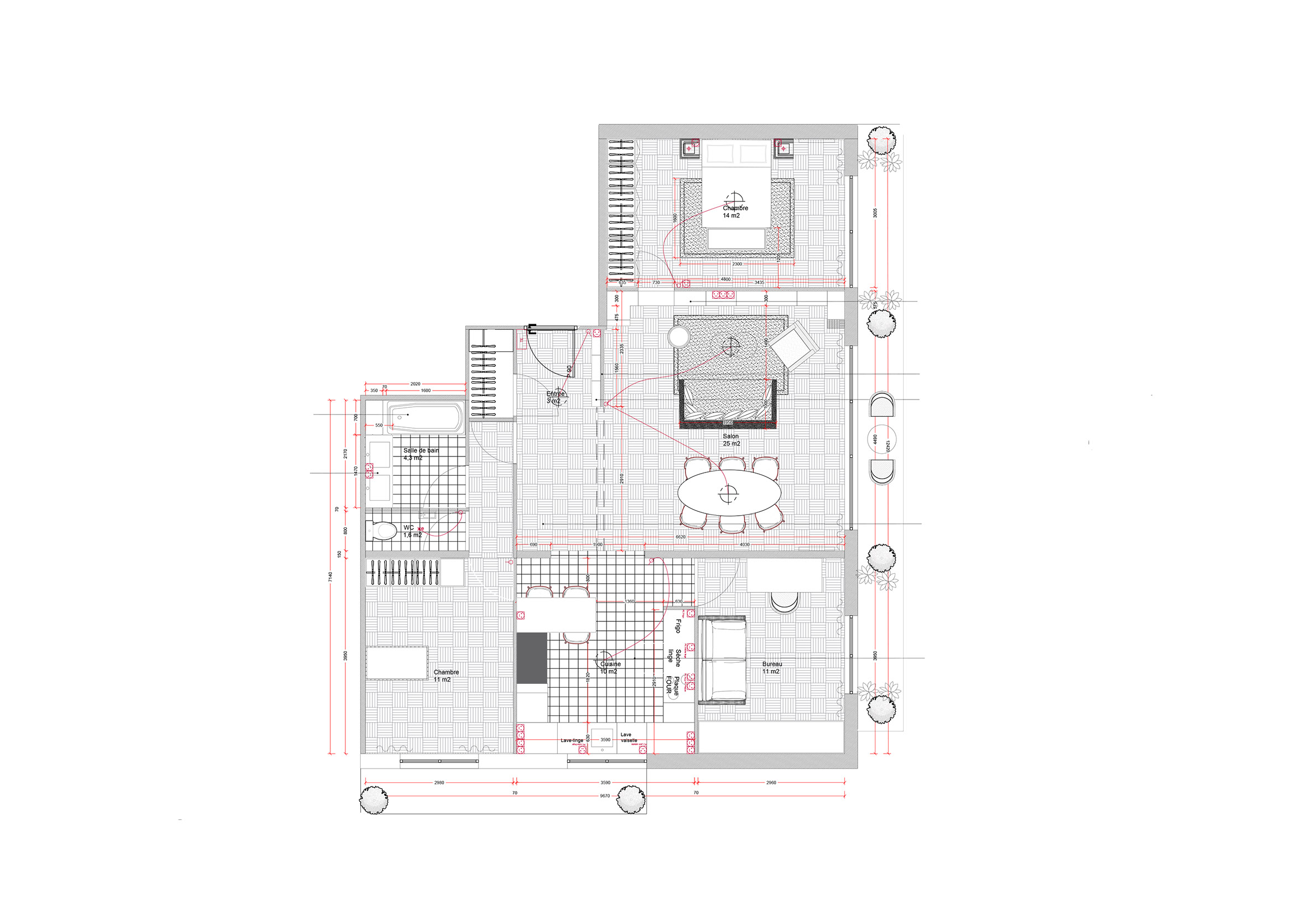
Projet Vincennes - Rénovation d'un appartement de 100 m2. 

Les clients ont souhaité revoir les proportions de l'appartement en créant une troisième chambre.

Nous avons également décidé d'ouvrir la cuisine sur le salon et de définir l'entrée avec une cloison.

Le challenge dans cet appartement typique des années 70 était de lui apporter du charme, et de mettre en valeur sa luminosité et sa vue dégagée.

Accessibilité
1 minute pour découvrir votre Archi, 72h pour programmer votre rendez-vous. Pour 50€ : une visite à domicile, un compte rendu ainsi qu'un devis de l'archi.
Sélection
Une communauté triée sur le volet d'architectes, architectes d'intèrieur et décorateurs partout en France. Une sélection des Archis par un jury en 5 étapes de sélection sur dossier et recommandations.
Suivi
Suivez l'évolution de votre projet avec un conseiller personnel attribué à chaque client.
Garantie
Accédez aux meilleurs Archis, artisans & économisez de l'argent.
97% de nos clients satisfaits recommandent nos services. Des paiements via un compte séquestre pour garantir votre satisfaction. Une garantie bonne fin de chantier et une protection juridique offerte par RencontreunArchi en partenariat avec Axa Assurance pour garantir vos chantiers.
Prise de rdv express !
Confiez à Rencontreunarchi le choix de votre Archi

Attention si votre ville contient des tirets, ne les oubliez pas !
(Ex: Nogent-sur-marne).
Merci de cliquer sur votre ville dans le menu déroulant.

Votre rendez-vous par : Domicile Visio Coaching déco
Rendez-vous conseil déco avec votre archi à domicile !
1 pièce à décorer : 1h30 de coaching, 1 recherche mobilier, 1 croquis ou 3D de votre future pièce pour 320€.

Attention si votre ville contient des tirets, ne les oubliez pas !
(Ex: Nogent-sur-marne).
Merci de cliquer sur votre ville dans le menu déroulant.

Ce compte existe déjà. Veuillez-vous connecter pour prendre rendez-vous. Se connecter